Nhóm doanh nghiệp liên quan TNG Holdings muốn làm dự án gần 750 tỷ đồng tại Huế
Sở Kế hoạch và Đầu tư tỉnh Thừa Thiên Huế vừa công bố kết quả mở hồ sơ đăng ký thực hiện dự án Khu dân cư phía Tây Nam quốc lộ 1A tại phường Tứ Hạ, thị xã Hương Trà. Theo đó có hai nhà đầu đăng ký thực hiện dự án là CTCP Bất động sản Mỹ và Công ty TNHH Oleco-Nq. Đáng chú ý cả hai nhà đầu tư này đều có liên quan đến Công ty Cổ phần Đầu tư TNG Holdings Việt Nam (TNG Holdings).
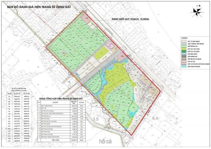
Theo thông tin được công bố, Khu dân cư phía Tây Nam quốc lộ 1A có quy mô gần 20 ha, tổng chi phí thực hiện dự kiến gần 750 tỷ đồng. Thời gian hoạt động của dự án là 50 năm, thời gian đầu tư không quá 42 tháng, trong đó thời gian hoàn thành hạ tầng kỹ thuật chủ yếu không quá 18 tháng, thời gian hoàn thành các công trình kỹ thuật trên đất không quá 36 tháng.
Hiện trạng khu đất chưa giải phóng mặt bằng, chủ yếu là đất chuyên trồng lúa nước, đất ở tại đô thị, đất trồng cây hằng năm,… Dự án này được phê duyệt quy hoạch chi tiết hồi tháng 10/2019.

Dự án có vị trí thuộc địa giới tổ 5, tổ 6 (phường Tứ Hạ) với ranh giới cụ thể gồm phía Đông Bắc giáp tuyến Quốc lộ 1A và các công trình trụ sở cơ quan; phía Đông Nam giáp tuyến đường Trần Thánh Tông và các công trình trụ sở cơ quan; phía Tây Bắc giáp tuyến đường qui hoạch có lộ giới 36m; phía Tây Nam giáp tuyến đường bê tông hiện trạng và Bệnh viện Đa khoa thị xã Hương Trà.
Về tiến độ thực hiện dự án, thời gian thực hiện hợp đồng không quá 36 tháng. Trong đó, thời gian hoàn thành đầu tư hạ tầng kĩ thuật không quá 18 tháng. Thời điểm tính tiến độ đầu tư được tính từ ngày bàn giao mặt bằng đạt 75%.
Được biết đây là dự án có ý nghĩa và hiệu quả về mặt kinh tế – xã hội, hình thành khu dân cư đô thị hiện đại, đồng bộ về hạ tầng kĩ thuật với hệ thống cảnh quan mặt nước rộng lớn, đồng thời là điểm nhấn đô thị cho thị xã Hương Trà. Dự án sẽ mang lại nguồn thu cho ngân sách nhà nước về tiền sử dụng đất và các nguồn thu khác từ việc hình thành khu thương mại, tiền thuế thu nhập doanh nghiệp.
Về phía hai nhà đầu đăng ký thực hiện dự án, CTCP Bất động sản Mỹ tiền thân là CTCP Bất động sản Mùa Đông – VID, được thành lập vào tháng 9/2007, có trụ sở tại GoldSeason TNR số 47 Nguyễn Tuân, phường Thanh Xuân Trung, quận Thanh Xuân, TP Hà Nội.
Tại thời điểm thành lập, Bất động sản Mỹ do bà Nguyễn Thị Nguyệt Hường làm Chủ tịch HĐQT. Trong đó, bà Hường là Chủ tịch Hội đồng sáng lập MSB và từng là Chủ tịch HĐQT VIDGroup (nay là TNG Holdings).
Từ cuối tháng 10/2015, vị trí Chủ tịch Hội đồng quản trị công ty liên tục thay đổi, lần lượt chuyển sang bà Phạm Thị Vân Hà, ông Vũ Hữu Hạnh, ông Cao Minh Tùng, ông Bùi Đức Quang và gần nhất do ông Nguyễn Đức An đảm nhiệm.
Được biết, trong hai năm trở lại đây, BĐS Mỹ và các doanh nghiệp trong hệ sinh thái TNG Holdings liên tục trúng thầu hàng loạt dự án ở phía Bắc và các tỉnh Tây Nam Bộ thông qua hình thức chỉ định thầu.
Trong đó, BĐS Mỹ đã trúng thầu tại các dự án: Khu đô thị mới Cường Thịnh (Lào Cai); dự án nhà ở thương mại (Thái Bình); Khu dân cư đô thị Cánh Buồm (Hà Tĩnh); 5.974 m2 đất (Cao Bằng); Khu đô thị Đông Mỹ (Thái Bình); Khu biệt thự Sông Uông (Quảng Ninh); Khu nhà ở đô thị Phong Châu (Phú Thọ); Khu dân cư phường Bảo Vinh (Đồng Nai);…

Mới đây nhất, BĐS Mỹ trúng thầu dự án Khu nhà ở đô thị Hùng Sơn quy mô hơn 17 ha tại thị trấn Hùng Sơn, huyện Lâm Thao, tỉnh Phú Thọ và Liên danh Bất động sản Mỹ – Nam Quang được chọn làm chủ đầu tư Khu đô thị mới thị xã Ngã Bảy 2, tỉnh Hậu Giang.
Còn Công ty TNHH Oleco-Nq được thành lập vào tháng 5/2018, có địa chỉ tại thôn 7, xã Diễn Kỷ, huyện Diễn Châu, tỉnh Nghệ An.
Tại thời điểm đăng ký thay đổi hồi tháng 8/2018, doanh nghiệp có vốn điều lệ hơn 482 tỷ đồng. Cơ cấu cổ đông gồm: CTCP Đầu tư và Phát triển Hạ tầng Nam Quang (76%), CTCP Bất động sản Bạch Đằng (24%). Tổng giám đốc kiêm người đại diện theo pháp luật là ông Đào Thanh Tới. Đến tháng 5/2021, vị trí này thay bằng bà Nguyễn Chi Mai. Trong đó, CTCP Đầu tư và Phát triển hạ tầng Nam Quang cũng là một doanh nghiệp liên quan đến Tập đoàn TNG Holdings Việt Nam.
Đáng chú ý, Công ty TNHH Oleco-Nq là chủ đầu tư dự án Khu đô thị thương mại và dịch vụ tổng hợp TNR Stars Diễn Châu quy mô hơn 33 ha tại Nghệ An. Dự án này do TNR Holdings làm nhà quản lý và phát triển độc quyền.