Một dự án Khu đô thị hơn 280 tỷ ở Hậu Giang tìm được chủ đầu tư

Dự án sẽ hoàn thành và đưa vào khai thác sử dụng trong vòng 36 tháng kể từ ngày nhà đầu tư được quyết định giao đất, cho thuê đất.

UBND tỉnh Hậu Giang vừa ban hành Quyết định số 892/QĐ chấp thuận nhà đầu tư của dự án Khu đô thị mới 2, thị trấn Mái Dầm, huyện Châu Thành là Công ty trách nhiệm hữu hạn một thành viên Bất động sản Hưng Phát. Doanh nghiệp này được thành lập đi vào hoạt động từ năm 2016, có trụ sở tại An Bình, Ninh Kiều, Cần Thơ.

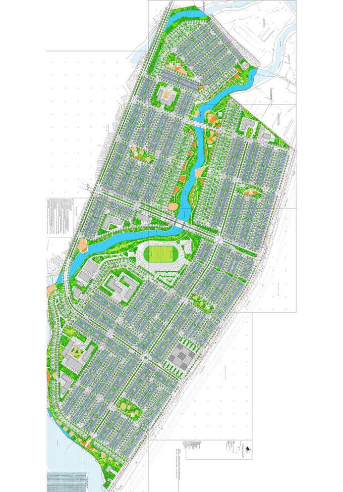
Bản đồ Khu đô thị mới 2 thị trấn Mái Dầm  
Bản đồ Khu đô thị mới 2 thị trấn Mái Dầm  

Theo đó vốn đầu tư của dự án khoảng 280 tỷ đồng, sơ bộ tổng chi phí thực hiện dự án (không bao gồm chi phí bồi thường, hỗ trợ, tái định cư, tiền sử dụng đất, tiền thuê đất) khoảng 147 tỷ đồng. Chi phí bồi thường, hỗ trợ, tái định cư 108 tỷ đồng. Chi phí dự phòng khoảng 25 tỷ đồng. 

Khu đô thị mới Mái Dầm thuộc địa giới hành chính thị trấn Mái Dầm, huyện Châu Thành, tỉnh Hậu Giang. Trước đó, Quy mô kiến trúc xây dựng theo Quy hoạch chi tiết đã được UBND huyện Châu Thành phê duyệt theo Quyết định số 6562/QĐ. Đầu tư xây dựng hoàn thiện mặt ngoài và xây thô phần bên trong các công trình nhà ở trên tuyến Đường tỉnh 925 theo quy hoạch. Cụ thể, diện tích đất xây dựng nhà ở khoảng 1.807m2; Diện sàn xây dựng nhà ở khoảng 2.891m2; Nhà ở liền kề, quy mô dân số khoảng 2.200 người.

Dự án đầu tư với mục tiêu đáp ứng nhu cầu về nhà ở, các khu trung tâm phức hợp cho người dân sinh sống trong khu đô thị và các khu vực lân cận. Quy hoạch thực hiện phân khu chức năng sử dụng đất, không gian, kiến trúc, cảnh quan, cùng các hệ thống hạ tầng kỹ thuật đồng bộ gắn kết chung tại khu vực. Tận dụng phát triển tối đa yếu tố cảnh quan, địa hình khu vực, phát triển đô thị song song với duy trì môi trường thiên nhiên hiện có. Hình thành một khu đô thị mang đậm tính đặc thù của người dân địa phương. Các khu vực phát triển không gian đô thị liên hệ chặt chẽ với khu vực lân cận, làm tiền đề cho sự phát triển đô thị hiện đại cao cấp, góp phần thúc đẩy phát triển kinh tế – xã hội cho địa phương.

Nhà đầu tư triển khai thực hiện dự án theo nội dung quy định tại Quyết định chấp thuận chủ trương đầu tư số 1868/QĐ do UBND tỉnh Hậu Giang cấp lần đầu và Quyết định số 1874/QĐ của Chủ tịch UBND tỉnh Hậu Giang phê duyệt yêu cầu sơ bộ năng lực, kinh nghiệm nhà đầu tư đăng ký thực hiện dự án đầu tư có sử dụng đất đối với dự án Khu đô thị mới 2, thị trấn Mái Dầm, huyện Châu Thành.

Thiên Kim